Rzut mieszkania to kluczowy dokument, który może stać się Twoją mapą do wymarzonego wnętrza. Niezależnie od tego, czy dopiero planujesz zakup, zamierzasz przeprowadzić generalny remont, czy po prostu chcesz odświeżyć aranżację, zrozumienie tego schematu jest absolutnie fundamentalne. Pozwala nie tylko uniknąć kosztownych błędów, ale także w pełni wykorzystać potencjał przestrzeni, którą dysponujesz.
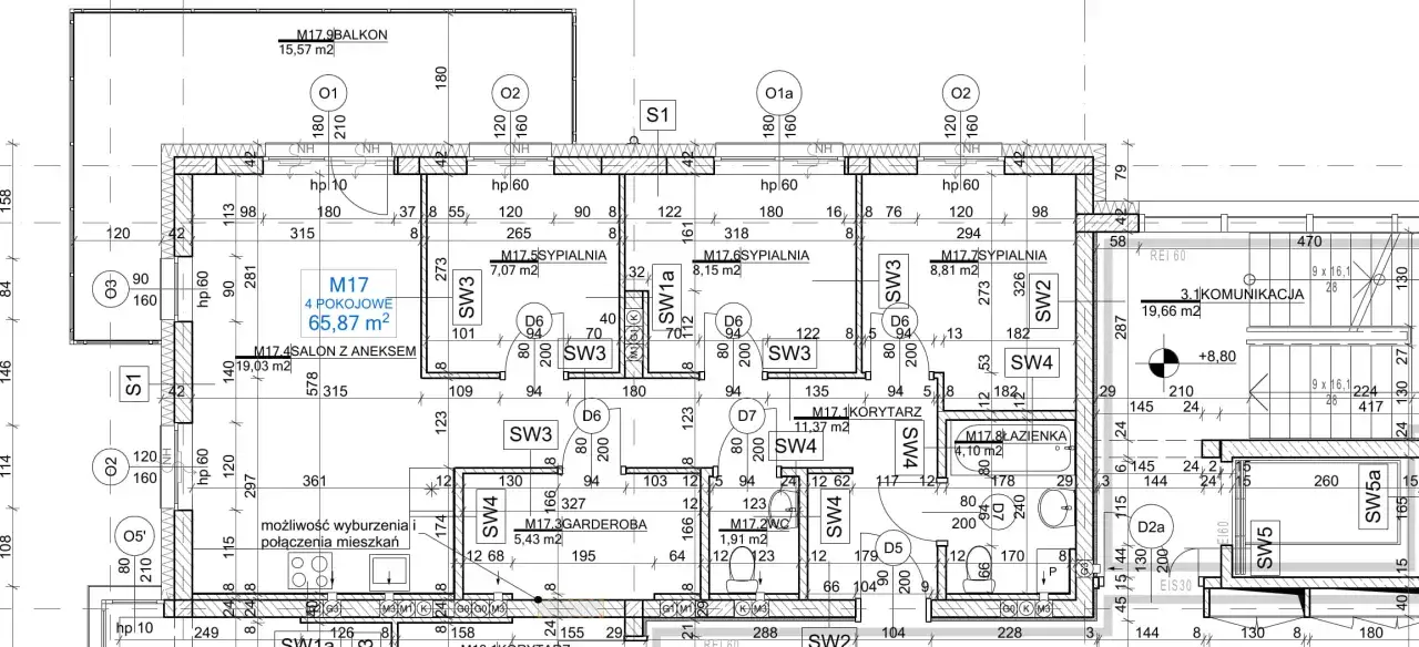
Czym właściwie jest rzut mieszkania? Najprościej mówiąc, to dwuwymiarowy schemat przedstawiający układ pomieszczeń widziany z góry. Zawiera on kluczowe informacje o wymiarach, rozmieszczeniu ścian, drzwi, okien, a także o położeniu elementów konstrukcyjnych i głównych instalacji. Warto od razu zaznaczyć, że możemy spotkać się z dwoma głównymi rodzajami rzutów: rzutem architektonicznym, zwanym też technicznym, który jest bardzo szczegółowy i zawiera precyzyjne dane dotyczące grubości ścian, pionów instalacyjnych czy elementów konstrukcyjnych, oraz rzutem sprzedażowym, który jest wersją uproszczoną, często wzbogaconą o przykładowe umeblowanie. Ten ostatni ma na celu głównie marketingowy pokaz potencjału aranżacyjnego mieszkania. Zrozumienie tych różnic jest pierwszym krokiem do świadomego planowania.
Dlaczego zrozumienie rzutu jest tak ważne? Ponieważ stanowi on podstawę do podejmowania wszelkich decyzji dotyczących przestrzeni. Bez niego, nawet najlepsze pomysły mogą okazać się niemożliwe do zrealizowania lub po prostu niepraktyczne. Rzut pozwala ocenić, czy układ funkcjonalny mieszkania odpowiada Twoim potrzebom, gdzie znajdują się potencjalne problemy i jakie możliwości modyfikacji oferuje dana przestrzeń. To jak posiadanie planu budowy przed rozpoczęciem wznoszenia domu pozwala uniknąć chaosu i zapewnić, że wszystko będzie na swoim miejscu.

Rzut mieszkania w bloku: Twoja mapa do wymarzonego wnętrza
Jak już wspomniałem, rzut mieszkania to nic innego jak dwuwymiarowy schemat przedstawiający układ pomieszczeń widziany z góry. Jest to swoista "mapa", która zawiera w sobie esencję informacji o przestrzeni. Znajdziemy na niej wymiary poszczególnych pomieszczeń, szerokość otworów drzwiowych i okiennych, a także zaznaczone elementy konstrukcyjne, takie jak ściany nośne, czy przebieg kluczowych instalacji. Warto od razu rozróżnić dwa podstawowe typy rzutów, z którymi możemy się spotkać. Pierwszy to rzut architektoniczny, nazywany też technicznym. Jest on niezwykle szczegółowy, zawiera precyzyjne dane dotyczące grubości ścian, lokalizacji pionów instalacyjnych (wodnych, kanalizacyjnych, wentylacyjnych) oraz wszelkich elementów konstrukcyjnych, które wpływają na układ pomieszczeń. Drugi typ to rzut sprzedażowy, często określany jako marketingowy. Jest to zazwyczaj uproszczona wersja planu, która nierzadko zawiera przykładowe umeblowanie, mające na celu wizualizację potencjału aranżacyjnego i ułatwienie wyobrażenia sobie przyszłego wnętrza. Zrozumienie tych różnic jest kluczowe, zwłaszcza gdy dopiero przymierzasz się do zakupu mieszkania lub planujesz gruntowny remont. Różnice między tymi planami mogą być znaczące i wpływać na zakres możliwych do wprowadzenia zmian.
W procesie zakupu, remontu czy aranżacji lokalu w bloku, umiejętność czytania rzutu jest absolutnie nieoceniona. To dzięki niemu możemy ocenić, czy układ pomieszczeń jest funkcjonalny, czy odpowiada naszym potrzebom, a także jakie możliwości modyfikacji oferuje dana przestrzeń. Bez tej wiedzy łatwo popełnić błędy, które mogą okazać się kosztowne w skutkach. Rzut jest więc nie tylko dokumentem technicznym, ale przede wszystkim narzędziem, które pozwala świadomie kształtować przestrzeń i unikać niepotrzebnych komplikacji.

Jak czytać rzut mieszkania niczym profesjonalista? Elementarz symboli
Aby w pełni wykorzystać potencjał rzutu mieszkania, musimy nauczyć się go czytać. To nie jest wiedza tajemna, a jedynie znajomość kilku podstawowych zasad i symboli, które pozwolą nam odczytać z planu wszystkie kluczowe informacje. Zacznijmy od tego, co najbardziej rzuca się w oczy ścian.
- Gruba czy cienka kreska? To pytanie jest kluczowe, jeśli myślimy o jakichkolwiek zmianach w układzie pomieszczeń. Gruba linia zazwyczaj oznacza ścianę nośną, czyli element konstrukcyjny budynku, który przenosi obciążenia. Z reguły nie można jej wyburzać bez uzyskania odpowiednich zgód i przeprowadzenia ekspertyzy konstruktora, co jest procesem skomplikowanym i kosztownym. Cienka linia to z kolei ściana działowa, która oddziela pomieszczenia, ale nie pełni funkcji konstrukcyjnej. Takie ściany można usuwać lub przesuwać, choć zawsze warto upewnić się, czy nie przebiegają przez nie ważne instalacje.
- Okna i drzwi bez tajemnic: Na rzucie zaznaczone są standardowe symbole okien i drzwi. Drzwi są zwykle przedstawione jako linia przerywana lub ciągła, z łukiem wskazującym kierunek otwierania. Ten ostatni element jest niezwykle ważny z punktu widzenia aranżacji pokazuje, ile miejsca potrzebujemy na otwarcie drzwi i jak wpłynie to na ustawność mebli w danym pomieszczeniu. Okna są zazwyczaj oznaczone jako przerwy w ścianie z dodatkowymi liniami symbolizującymi skrzydła okna.
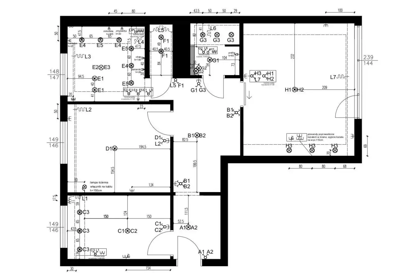
- Instalacje pod lupą: Rzut jest również źródłem informacji o ukrytych w ścianach i podłogach instalacjach. Szukaj oznaczeń punktów elektrycznych (gniazdek, włączników), przyłączy wodno-kanalizacyjnych (krany, odpływy) oraz pionów wentylacyjnych. Lokalizacja tych elementów jest szczególnie ważna przy planowaniu kuchni i łazienki, ponieważ ich przeniesienie jest zazwyczaj bardzo trudne lub wręcz niemożliwe bez poważnych przeróbek.
- Róża wiatrów na planie: Niektóre rzuty zawierają również tzw. różę wiatrów. Jest to graficzny symbol wskazujący kierunki świata. Dzięki niej możemy łatwo sprawdzić, na którą stronę świata zorientowane są poszczególne pomieszczenia. Informacja ta jest nieoceniona przy planowaniu aranżacji, ponieważ wpływa na nasłonecznienie wnętrz i komfort ich użytkowania w ciągu dnia.

Skąd wziąć rzut swojego mieszkania? Sprawdzona ścieżka postępowania
Posiadanie aktualnego i dokładnego rzutu mieszkania jest kluczowe, ale skąd go właściwie wziąć? Ścieżka postępowania może się nieco różnić w zależności od tego, czy jesteś właścicielem nowego lokalu, czy też kupiłeś mieszkanie na rynku wtórnym.
- Mieszkanie od dewelopera: Jeśli kupujesz mieszkanie od dewelopera, sprawa jest zazwyczaj prosta. Dokumentację techniczną, w tym rzut mieszkania, powinien udostępnić Ci sam deweloper w ramach umowy lub jako załącznik do niej. Warto upewnić się, że otrzymujesz pełny komplet dokumentów, zawierający zarówno rzut architektoniczny, jak i ewentualne plany instalacji.
- Mieszkanie z rynku wtórnego: W przypadku starszych mieszkań, sytuacja może być nieco bardziej skomplikowana. Najlepszym miejscem do poszukiwań jest spółdzielnia mieszkaniowa lub administracja budynku. Te instytucje zazwyczaj przechowują dokumentację techniczną budynków, w tym plany poszczególnych lokali. Warto złożyć formalny wniosek o udostępnienie rzutu swojego mieszkania. Czasem, jeśli dokumentacja jest bardzo stara lub budynek nie był zarządzany przez spółdzielnię, konieczne może być zwrócenie się do archiwum miejskiego lub powiatowego, gdzie mogą znajdować się historyczne plany budynków.
- Gdy dokumentacji brak: Co zrobić, jeśli oryginalna dokumentacja nie istnieje, została zagubiona lub jest niedostępna? W takiej sytuacji jedynym rozwiązaniem jest zlecenie profesjonalnej inwentaryzacji architektonicznej. Jest to usługa polegająca na tym, że specjalista (architekt lub technik budowlany) przyjeżdża na miejsce, dokładnie mierzy całe mieszkanie i na podstawie tych pomiarów tworzy nowy, dokładny plan. Jest to rozwiązanie, które gwarantuje precyzję, choć wiąże się z dodatkowymi kosztami. Według danych Inspekcja Domu, inwentaryzacja jest kluczowa, gdy chcemy mieć pewność co do wymiarów i układu pomieszczeń, zwłaszcza przed planowanymi większymi zmianami.

Od planu do działania: Jak wykorzystać rzut do stworzenia funkcjonalnej przestrzeni?
Posiadanie rzutu mieszkania to dopiero pierwszy krok. Prawdziwa magia zaczyna się, gdy zaczynamy go wykorzystywać do planowania i aranżacji. To właśnie na tym etapie możemy przekształcić abstrakcyjny schemat w realne, funkcjonalne i estetyczne wnętrze.
- Analiza układu funkcjonalnego: Pierwszym i najważniejszym zadaniem jest dokładna analiza obecnego rozkładu pomieszczeń. Zastanów się, co działa dobrze, a co wymaga poprawy. Czy komunikacja w mieszkaniu jest płynna? Czy wszystkie pomieszczenia są odpowiednio doświetlone? Czy obecny układ odpowiada Twojemu stylowi życia? Rzut pozwala nam dostrzec potencjalne problemy, takie jak wąskie przejścia, nieustawne kąty czy niewykorzystane przestrzenie.
- Najczęstsze zmiany w mieszkaniach w bloku: Analiza rzutu często prowadzi do pomysłów na modyfikacje. W blokach niezwykle popularne są takie zmiany jak łączenie kuchni z salonem, tworząc otwartą przestrzeń dzienną, wydzielanie w salonie kącika na domowe biuro, czy też próby powiększenia łazienki kosztem przedpokoju lub innego pomieszczenia. Pamiętaj jednak, że każda taka modyfikacja, zwłaszcza jeśli ingeruje w ściany działowe lub przebieg instalacji, wymaga nie tylko dokładnej analizy planu, ale także często zgody odpowiednich organów.
- Narzędzia, które pomogą Ci zwizualizować zmiany: Na szczęście, nie musisz być profesjonalnym architektem, aby móc eksperymentować z aranżacją. Dziś dostępnych jest wiele darmowych programów i aplikacji online, które umożliwiają samodzielne narysowanie rzutu mieszkania lub wgranie istniejącego planu. Pozwalają one na wirtualne przestawianie ścian, dodawanie mebli i testowanie różnych wariantów aranżacyjnych. To świetny sposób na przetestowanie swoich pomysłów przed podjęciem ostatecznych decyzji i uniknięcie kosztownych błędów.
Inspirujące układy mieszkań w bloku: zobacz przykładowe rzuty
Choć każde mieszkanie jest inne, istnieją pewne typowe, funkcjonalne układy, które sprawdzają się w blokach, zwłaszcza w zależności od metrażu. Analizując rzuty, możemy dostrzec, jak projektanci starali się maksymalnie wykorzystać dostępną przestrzeń.
- Kawalerka i małe mieszkanie (do 35 m²): Na tak małym metrażu kluczem do sukcesu jest maksymalizacja przestrzeni. Często spotykamy tu otwarty plan, gdzie salon płynnie przechodzi w aneks kuchenny, a nawet strefę sypialnianą. Niezwykle ważne jest inteligentne przechowywanie wysokie szafy, zabudowy pod sufit, czy meble wielofunkcyjne (np. łóżko z szufladami, rozkładana sofa) stają się niezbędne. Rzuty takich mieszkań często pokazują, jak można wydzielić funkcjonalne strefy za pomocą mebli lub lekkich przepierzeń.
- Mieszkanie dwupokojowe (ok. 40-50 m²): To jeden z najpopularniejszych układów. Najczęściej spotykamy tu podział na salon z aneksem kuchennym i oddzielną sypialnię. Rzuty pokazują, jak można efektywnie wykorzystać przestrzeń, zapewniając jednocześnie prywatność. Czasem spotykamy też wariant z dwoma osobnymi pokojami, gdzie jeden pełni funkcję salonu, a drugi sypialni. Kluczowe jest tu dobre rozplanowanie komunikacji i optymalne wykorzystanie każdego metra kwadratowego.
- Mieszkanie trzypokojowe (ok. 55-65 m²): W tym przypadku mamy już więcej możliwości. Rzuty trzypokojowych mieszkań często pokazują możliwość pogodzenia strefy dziennej z komfortem dwóch osobnych sypialni. Może to być układ z dużym salonem i dwiema mniejszymi sypialniami, albo bardziej zrównoważony podział. Często spotykamy też wariant z oddzielną kuchnią, co dla wielu osób jest nadal preferowanym rozwiązaniem. Różnorodność układów pozwala na dopasowanie mieszkania do potrzeb rodziny z dziećmi, pary pracującej zdalnie, czy po prostu osób ceniących sobie przestrzeń i prywatność.
Najczęstsze błędy przy analizie rzutu i jak ich uniknąć
Analiza rzutu mieszkania, choć wydaje się prosta, kryje w sobie kilka potencjalnych pułapek. Świadomość tych błędów pozwoli Ci uniknąć frustracji i kosztownych pomyłek.
- Ignorowanie pionów instalacyjnych: To jeden z najczęstszych błędów. Piony wodno-kanalizacyjne i wentylacyjne są elementami, które zazwyczaj znajdują się w stałych miejscach i są trudne do przeniesienia. Planowanie przeniesienia kuchni lub łazienki bez uwzględnienia ich lokalizacji może okazać się niemożliwe lub ekstremalnie drogie. Zawsze zwracaj uwagę na te "kolumny" na planie to one narzucają pewne ograniczenia.
- Zapominanie o grubości ścian: Wymiary podane na rzucie często odnoszą się do grubości ścian "po tynku" lub do osi ściany. Rzeczywista grubość ścian nośnych i działowych może być różna, a to wpływa na realną powierzchnię użytkową pomieszczeń. Różnica kilku centymetrów może mieć znaczenie, zwłaszcza w mniejszych mieszkaniach, gdy planujemy ustawienie mebli. Zawsze warto to mieć na uwadze.
- Brak weryfikacji wymiarów z rzeczywistością: Nawet najlepiej wykonany rzut może zawierać niewielkie rozbieżności z rzeczywistością, zwłaszcza jeśli pochodzi z rynku wtórnego lub jest bardzo stary. Dlatego miarka jest Twoim najlepszym przyjacielem. Zanim podejmiesz jakiekolwiek decyzje aranżacyjne, a zwłaszcza przed zakupem mebli na wymiar, zawsze zweryfikuj kluczowe wymiary w mieszkaniu. To prosta czynność, która może uratować Cię przed wieloma problemami.
